RESSOURCE SOEST KONZEPTSTUDIE
Soester Freiheit – Wandlung des Ressourceparkplatzes
Die „Soester Freiheit“* ist ein Oberbegriff eines unabhängigen, freien und unkonventionellen Denken und Handeln in Bezug auf zukünftige Entwicklungen der Stadt Soest sein. Er bezieht sich auf alle gesellschaftlichen Bereiche mit der Intention, fortschrittliche, demokratische Themen und Perspektiven zu entwickeln, offen zu diskutieren und ggf. umzusetzen.
– Begriff von Kord Winter geprägt, anlässlich des Festivals der Farben, 2000
Architektur und Städtebau-Wandlung des Ressourceparkplatzes
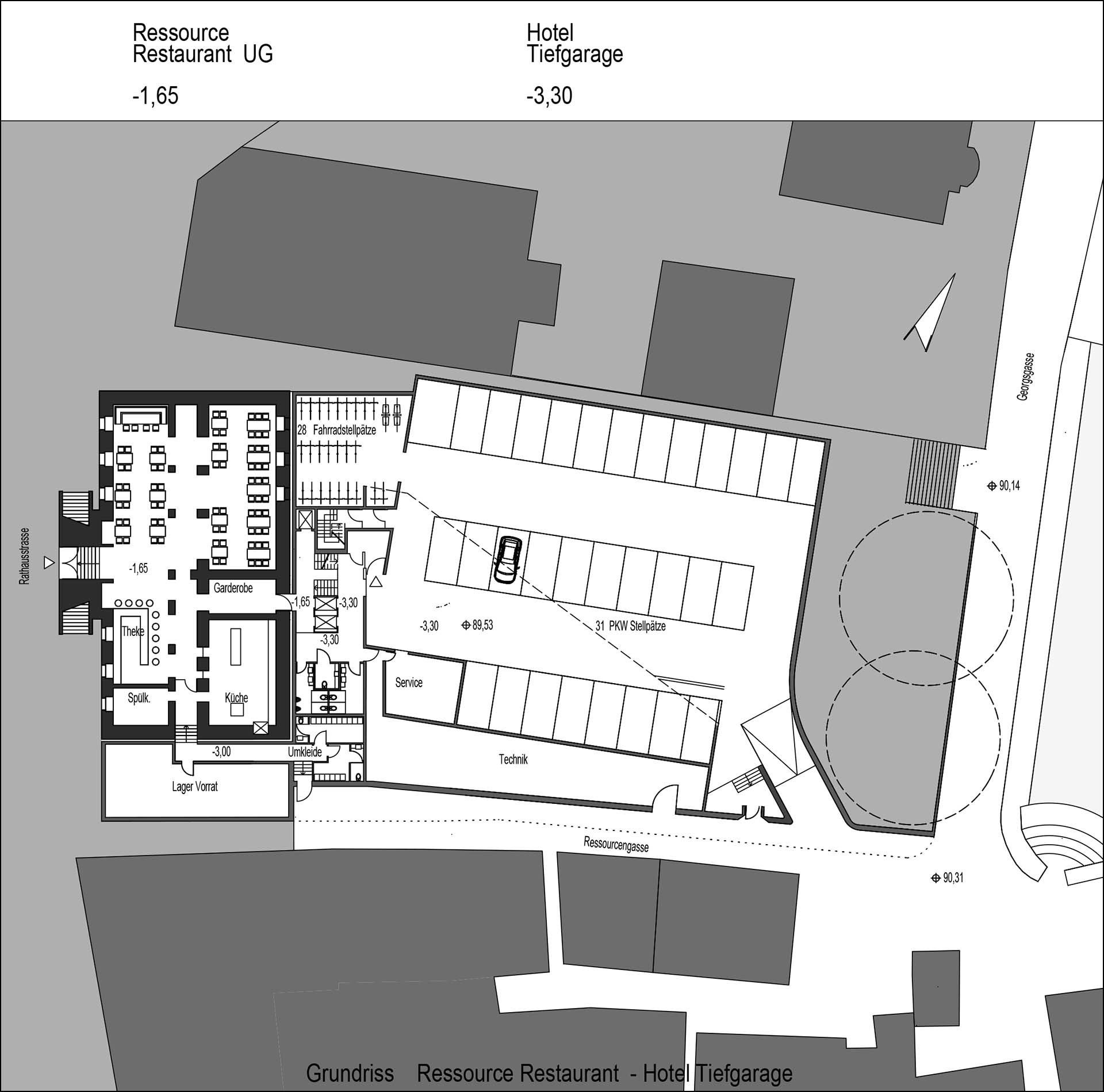
Anlass der Überlegungen war die Frage wie könnte der gebührenpflichtige Parkplatz der Gesellschaft Ressource, der Teil ihrer wirtschaftlichen Grundlage ist und mitten im Zentrum der historischen Altstadt liegt, zu einem öffentlichen Platz gewandelt werden ohne die wirtschaftliche Grundlage der Gesellschaft zu gefährden. Die Idee ist, das historische Gebäude der Gesellschaft Ressource um einem Hotelbereich mit minimalem Erdgeschoss zu erweitern, einen neuen Zugang zum Großen Teich zu schaffen, den jetzigen Parkplatz in einen Skulpturenhof und somit zu einen neuen öffentlichen, kulturellen Platz im Zentrum von Soest zu wandeln.
(Studie mit freundlichem Einverständnis der Gesellschaft Ressource)
Architektur und Städtebau
Unter diesem Schwerpunkt stellen wir die Idee einer möglichen Entwicklung des Grundstücks der Ressourcengesellschafts in der Soester Altstadt vor.
Sie soll die Diskussion über die architektonische Entwicklung der Altstadt anregen und zeigen, dass moderne Architektur das Stadtbild enorm bereichern kann und generell den Blick eher auf eine zukünftige Entwicklung lenken.
Es ist daher wichtig, das jetzige Stadtbild historisch nur als eine aktuelle Momentaufnahme zu betrachten: Als Zwischenergebnis einer jahrhundertelangen Baugeschichte mit vielen neuen Baustilen. Das historische Stadtbild stellt eine hohe kulturelle Leistung dar, die es gilt in ihren Strukturen zu erhalten aber auch weiter zu entwickeln.
Geschichte und insbesondere Baugeschichte als Wissenschaft sieht immer den Blick zurück aber auch den Blick nach vorn. Sie sieht die Stadt als ein lebendiges Gebilde das immer wieder durch neue Architektur ergänzt wurde und sucht nach Gesetzmäßigkeiten, wie dieses Stadtbild entstanden ist und wie es auf hohem Niveau weiter ergänzt werden kann. Eine Reduzierung auf eine Geschichtsbetrachtung, die ein Stadtbild als endgültiges, sich nicht mehr weiterentwickelndes Gebilde betrachtet, ist weder nachhaltig noch wissenschaftlich.
Historisch gesehen hat Soest kein mittelalterliches, sondern eher ein neuzeitliches Stadtbild.
Von einem mittelalterlichen Stadtbild zu reden ist insofern unzutreffend, da es nur die in dieser Zeit (500-1500) entstandenen Strukturen und Gebäude beinhaltet und alle anderen bauten und Architekturstile danach als nicht relevant betrachtet. Mittelalterlich ist zwar der Stadtgrundriss und einige Baudenkmäler, bzw. Fachwerkhäuser, alles andere, und das ist die Mehrzahl der Gebäude, ist ab 1500 bis heute mit unterschiedlichsten Baustilen als Renaissance, Barock, Klassizismus, Historismus und zum Teil als Nachkriegsmoderne entstanden.
Mittelalter 500 – 1500, Romanik, Gotik
Neuzeit 1500 – 1900 mit Renaissance, Barock, Klassizismus, Jugendstil, Moderne ab 1900.
Soest hat demnach keine mittelalterliche, sondern eine eher neuzeitliche Altstadt, die auf einem mittelalterlichen Stadtgrundriss aufgebaut ist. Sie ist ein sich ständig weiterentwickelndes „Gesamtkunstwerk“. Nur durch diese ständige Weiterentwicklung hat das Stadtbild die Qualität die wir heute schätzen. Viele Gebäude davon sind inzwischen Baudenkmäler.
Die Gesetzmäßigkeit für dieses Stadtbild ist die ständige Ergänzung durch neue gute Architektur der jeweiligen Epochen.
Was ergibt sich nun daraus für neues Bauen im Stadtkern?
Wenn man diese Gesetzmäßigkeit als richtig und wichtig erachtet, müsste an jeden Neubau der Anspruch an architektonische Qualität gestellt werden, die zeitgemäß, neu und eigenständig sein sollte. D.h. dass „Gesamtkunstwerk Stadt“ wird durch ein neues „Einzelkunstwerk“ ergänzt.
Der Gedanke, dass gute neue und durchaus ungewohnte Architektur die vorhandene, bzw. ein Baudenkmal stören könnte, würde somit erst gar nicht aufkommen. Vielmehr würde der normale Anspruch entstehen, dass neben gutem Alten auch gutes Neues stehen muss.
Zum Vergleich: Kein Museum das Werke von Raffael, Rembrandt, van Gogh usw. besäße würde auf die Idee kommen, dass z.B. ein Morgner oder ein Richter die alten Meister stört. Vielmehr würde es schätzen ein solches neues Werk zu besitzen. Genauso verhält es sich mit Architektur und Städtebau. Da aber Architektur und Städtebau viel elementarer auf unser Leben einwirken, kommt der Baukunst eine besondere Bedeutung für unsere Lebensqualität zu.
Gute neue Architektur
Frühere Epochen hatten für ihre Architektur eine jeweils klare Formensprache, Gotik, Renaissance, Barock, Klassizismus,
deren Gebäude mit ihren Sinnbildern für Größe, Erhabenheit, Harmonie und Schönheit einen ablesbaren Beitrag zur Stadtgestalt geleistet haben.
Mit dem Aufkommen der Moderne sind Begriffe wir Sachlichkeit, Konstruktivität, Funktionalität in den Vordergrund getreten, die allerdings in ihrer eigenen Formensprache auch den Anspruch auf Harmonie und Schönheit haben.
Hinzu kommt noch der Begriff der Eigenständigkeit. Er bedeutet, dass das Gebäude die Rahmenbedingungen aus dem Standort, der Nutzung und Umgebung aufnimmt, sie in einer Weise interpretiert, die nur speziell hierfür eine Lösung mit einer eigenen Formensprache bietet.
Hier werden die Begriffe Harmonie und Schönheit nicht in den traditionellen Sichtweisen bewertet, sondern in der gelungenen und eigenständigen Umsetzung der Anforderungen. Der Begriff Schönheit bezieht sich nicht nur auf die äußere Gestalt, sondern ebenso auf den Inhalt. So wie eine Person nicht nur nach seiner äußeren Gestalt, sondern auch oder vor allem nach seinem Charakter als schön beurteilt werden kann.
Gute neue Architektur muss daher auf den ersten Blick nicht unbedingt als schön empfunden werden, aber bei der Betrachtung der gelungenen Umsetzung der Rahmenbedingungen kann dies gute und schöne Architektur mit einer eigenen Ästhetik sein.
Nicht auf alle Bauvorhaben treffen diese Rahmenbedingungen und Ansprüche zu aber wenn, dann sollten Gebäude als gelungene, gute Architektur in einem Stadtgefüge betrachtet und gewünscht werden, die dies wie oben beschrieben erfüllen.
Beispiele jüngerer Vergangenheit: Stadtbibliothek, Morgner Haus, Ländliche Sparkasse.



















